Design & Drafting work

Client: Pacific Rim Architecture LLC.
 
45 Puia Place, Makawao, Maui, HI 96768
    Tel: (808) 281-4190, Web:
www.pacificrimarchitecture.com

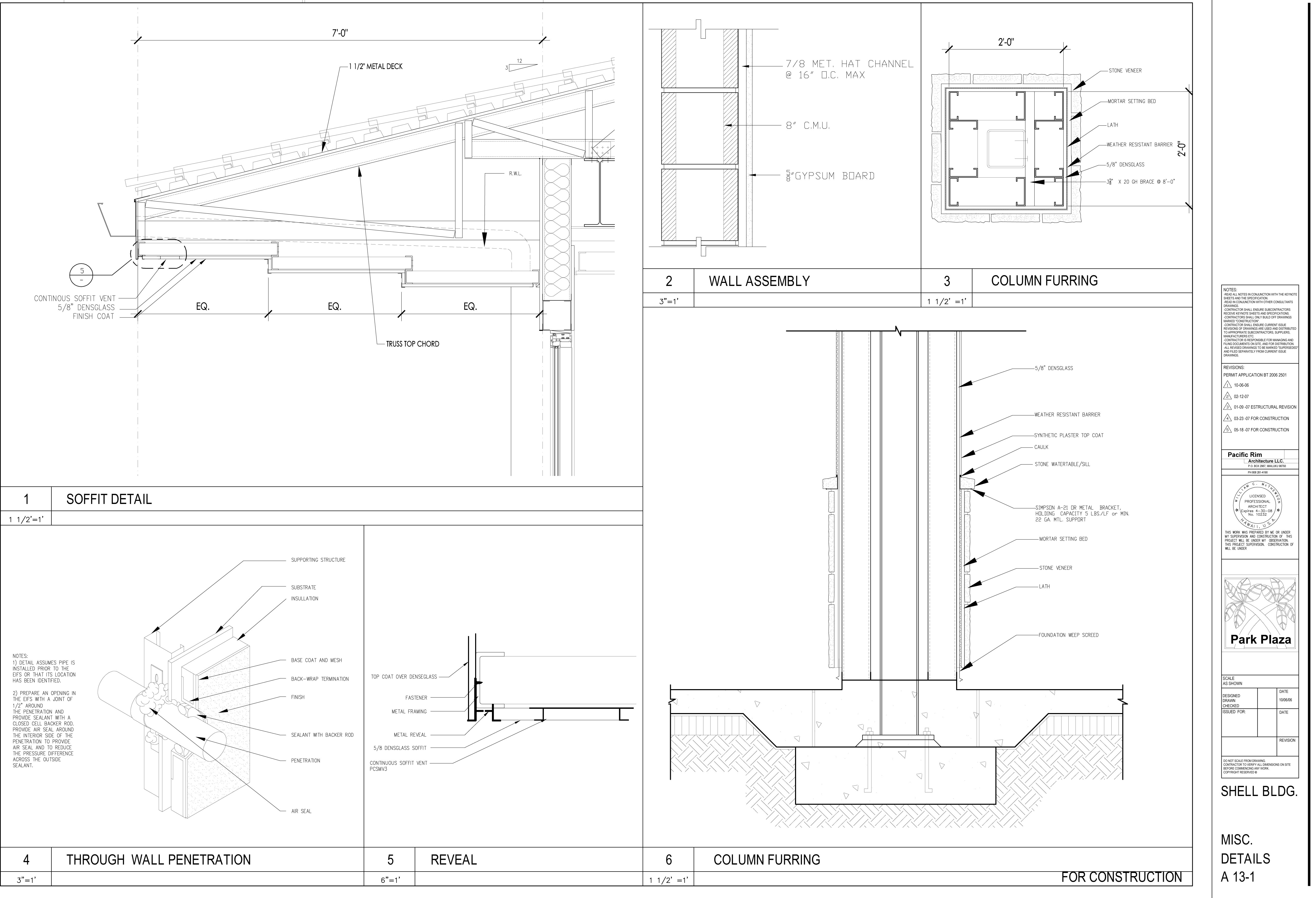
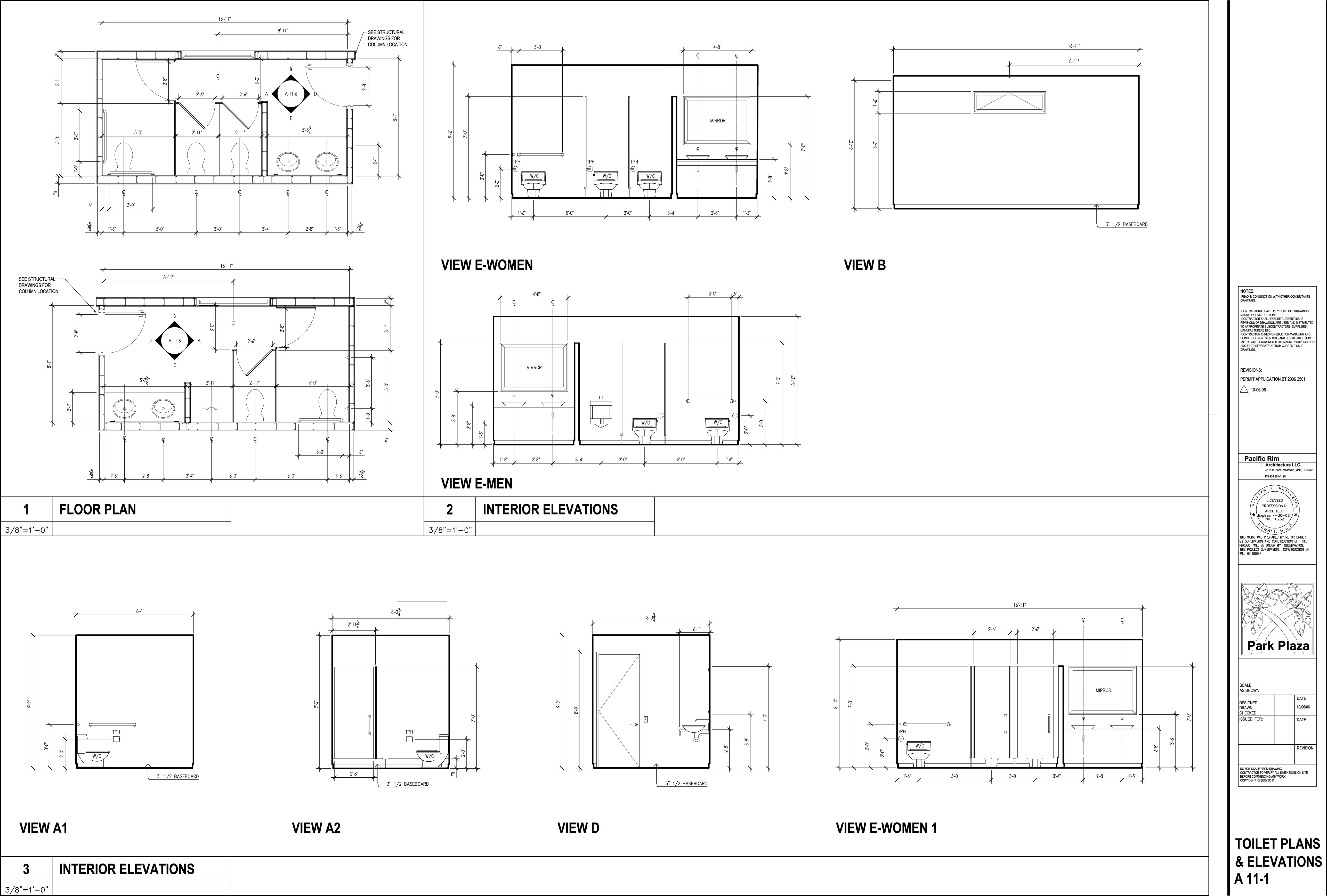
Project: Park Plaza Office Building, Maui, HI
     35,000 sq.ft.
Service rendered: Design support - Preparation of
Construction Documents -  3D work/Renderings - Assistance
on responding to RFI's
Enlarge
Sections
Restrooms
Wall sections
Details
Details
Click on each image to enlarge